国浩房地产是新加坡上市房企。在新加坡、中国、马来西亚、越南、英国、澳大利亚等多个国家核心城市打造众多地标项目,获得APPA 亚太房地产奖、BCI 亚洲大奖等众多国际大奖。
1994年进入中国,打造了国浩长风汇都、国浩18T等高端地标项目。版图横跨亚欧的“地产大亨”国浩房地产:国浩房地产于1976年在新加坡成立,1978年在新加坡证券交易所上市。
迄今,国浩房地产以全球化的视野、卓越的创新设计,及对品质的精工研磨,引领城市风潮及未来,高端豪宅作品享誉国际。国浩地产的拿地战略:选择一座城市最核心的地段,打造最高端的产品。
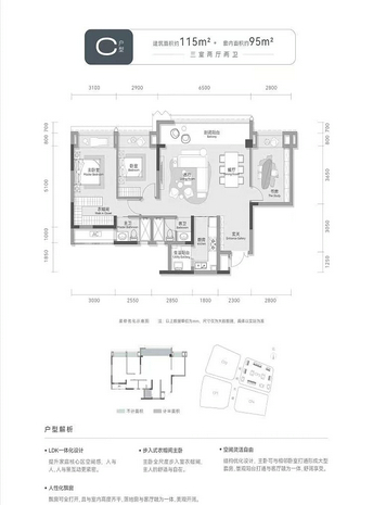
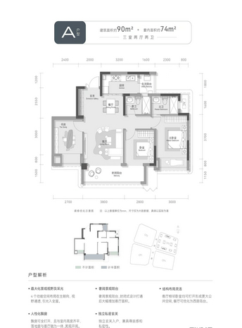
在售产品:小洋楼
面积:建面115平
均价:约16500元/平
占地面积:141958㎡
建筑面积:193490㎡
总层高:11层
几梯几户:2T4户
物业公司:第一太平戴维斯
物业费:3.7元/平/月
绿化率:35% 容积率:1.39
开发商:国浩房地产
重庆市渝北区秋成大道鲁家沟地铁站2A出口正对面
品牌地产 低密居所
三甲渝北区人民医院为您的家人健康保驾护航

Copyright© 2020 重庆精铭磊网络科技有限公司 版权所有 电话:023-65169822 备案号:渝ICP备20002095号
