鹿山府,2020年,荣盛立址重庆中央公园,把握中轴,承袭“府邸”序列,倾荣盛之大成,创著[荣盛·鹿山府],为城市菁英进阶北区生活。
荣盛·鹿山府洞悉美好生活便捷的要义,毗邻轨道10号线鹿山站。
与鹿山公园(规划中)、观音公园(规划中)一街对望,以城市价值与人居体验为合著标准,让鹿山府成为中央公园新的住宅名片。
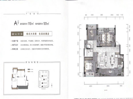
在售:小高层 洋房
建面面积91平-119平 均价约14000元/平起
占地面积:81114平方米
建筑面积:162200平方米
总层高:洋楼11-12层 洋房6层
几梯几户:洋楼2梯4户 洋房1梯2户
物业公司:荣盛物业管理有限公司
物业费:洋楼3.2元/平/月 洋房3.8元/平/月
绿化率:30% 容积率:2
开发商:重庆荣品房地产开发有限公司
重庆市渝北区桂馥大道鹿山轻轨站旁
中央公园、鹿山公园、碧津公园
渝北区人民医院、妇幼保健院、重庆中医院

Copyright© 2020 重庆精铭磊网络科技有限公司 版权所有 电话:023-65169822 备案号:渝ICP备20002095号
